Es wird mit der Erschließung für das Neue Feuerwehrhaus begonnen. Ab 5.3. ist die Zufahrt zum Gewerbepark am Kreisverkehr gesprerrt, da die Rohrleitungen zum Feuerwehrhaus verlegt werden.

Laut der Baufirma Eurovia soll die Erschließung des Bauplatzes innerhalb von 6 Wochen abgeschlossen sein.

Die Gemeinde Engelsbrand plant ein zentrales Feuerwehrhaus, um die Leistungsfä-higkeit der Feuerwehr langfristig erhalten zu können. Nach der Anerkennung der fort-geschriebenen Entwurfsplanung durch den Gemeinderat können nun im Rahmen der Ausführungsplanung die Entwürfe weiter detailliert ausgearbeitet werden.

Als Grundlage zur Erstellung der Entwurfsplanungen für den Neubau wurde vom Gemeinderat im Mai 2015 die zentrale Fläche beim Kreisverkehr, auf der sich heute unter anderem der Waldparkplatz befindet, als Standort für das neue Feuerwehrhaus festgelegt.

Nachdem das Gremium die grundsätzliche Zustimmung zur Entwurfsplanung erteilt hatte konnten durch das beauftragte Architekturbüro Binder die Planungen weitergeführt werden. Dies erfolgte in umfangreicher Abstimmung mit den Beteiligten, mit welchen noch offene Punkte geklärt und weitere Überlegungen eingebracht wurden.

Dazu fanden unter anderem weitere detaillierte Gespräche mit der Feuerwehr sowie dem Landratsamt Enzkreis statt. Gerade im Hinblick auf die notwendigen behördlichen Genehmigungen wurden die Auflagen des Kreisbrandmeisters und des Kreisbaumeister schon beim jetzigen Planstand berücksichtigt und dabei mit den bereits vorsorglich angedachten Eventualpositionen abgeglichen.

Anschließend wurde durch die Projektgruppe Feuerwehr eine Vorauswahl der weiteren im Entwurf aufgeführten, bisher aber noch nicht geklärten Eventualpositionen getroffen. Als Ergebnis wurde die Entwurfsplanung in mehreren Punkten angepasst.

Die fortgeschriebene Planung wurde dem Gemeinderat und zahlreichen Zuhörern in der Sitzung am 01. März 2017 vorgestellt und schließlich vom Gremium anerkannt.

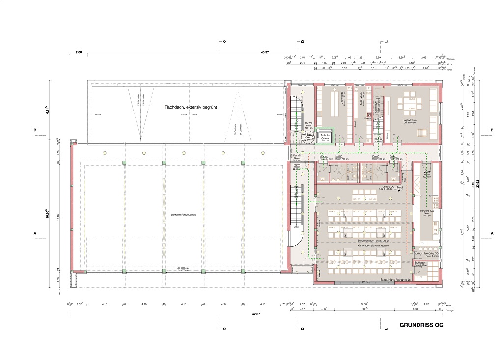
Neben diesem Artikel ist die aktuelle Ansicht und der Lageplan abgedruckt. Diese finden Sie in einer übersichtlicheren Form auf unserer Homepage www.engelsbrand.de. Hier sind auch die beiden Grundrisse des Neubaus eingestellt.

Die Anpassung der Planung bringt eine Änderung der zu erwartenden Kosten mit sich, welche sich bisher auf 4,172 Mio. Euro beliefen. Dieser Betrag resultierte aus den Kostenzusammenstellungen des Architekten sowie der zahlreichen Fachplaner und wurde durch die THOST Projektmanagement GmbH nochmals überprüft und bewertet.

Die aktuellen Gesamtkosten belaufen sich nach der aktualisierten Kostenermittlung auf insgesamt 4,269 Mio. Euro.

Die Gesamtsumme setzt sich zusammen aus ca. 3,229 Mio.€ für das Gebäude, 429.000 Euro für die Erschließung, 411.000 Euro für die Außenanlagen und 96.000 Euro für die Ausstattung des Gebäudes.

Des Weiteren ist in dieser Summe als Sicherheit für steigende Baupreise / Materialpreissteigerungen (Baupreisindex) ein Ansatz in Höhe von 104.000 Euro (2,5 %) enthalten.

Als Beitrag vom Land Baden-Württemberg erhält die Gemeinde aus der Fachförderung des Feuerwehrwesens einen pauschalen Zuschuss in Höhe von 275.000 Euro für den Neubau.

Außerdem wird für das Vorhaben ein Antrag auf Gewährung von Mitteln aus dem Ausgleichsstock gestellt. Diese Zuwendung ist abhängig von der Anzahl der eingereichten Anträge und kann daher nicht im Voraus beziffert werden.

Mit den fortgeschriebenen Entwurfsplänen können als nächstes die Genehmigungs- und die Ausführungspläne ausgearbeitet werden.

Als Baustart für die Erschließung des Grundstücks ist der Oktober 2017 vorgesehen. Nach den Wintermonaten, also voraussichtlich im März 2018, findet der Baubeginn für das Gebäude statt.

Mit einer Bauzeit von anderthalb Jahren ist als Fertigstellung des Vorhabens der Oktober 2019 geplant.

Die Zusammenlegung der drei Feuerwehrabteilungen und die künftige Ausgestaltung der Fahrzeuge war ein Ergebnis der Untersuchungen eines externen Fachplaners, der im Jahr 2013 den Feuerwehrbedarfsplan erstellt hat.

Bei der Analyse wurde festgestellt, dass aufgrund der aktuellen gesellschaftlichen Entwicklungen (demographischer Wandelt etc.) eine Neustrukturierung und Zusammenlegung der bisher drei Abteilungen der Feuerwehr Engelsbrand unausweichlich ist. Insbesondere die prognostizierte Anzahl an Feuerwehrangehörigen reicht künftig nicht mehr aus, um die drei Engelsbrander Feuerwehrabteilungen aufrecht zu erhalten.

Um die Leistungsfähigkeit der Feuerwehr zum Schutz der Gesundheit und des Eigentums der Bevölkerung sicher stellen zu können und da keine anderen umsetzbaren Alternativen ersichtlich sind, hat sich der Gemeinderat daher zum Bau eines neuen, zentralen Feuerwehrhauses bis zum Jahr 2018 entschlossen.

Durch die Zusammenlegung der drei Feuerwehrabteilungen in einem neuen Feuerwehrhaus ergibt sich in Zukunft eine Einsparung bei den laufenden Betriebskosten für die Unterhaltung und Bewirtschaftung der Gebäude. Dezentrale Strukturen (z.B. mehrere Verwaltungsstandorte, Hallen, Schulen) sind immer mit aufwändigeren Prozessen und einem langfristig höheren Kostenaufwand verbunden. Eventuell können durch den Verkauf von bestehenden Feuerwehrmagazinen auch zusätzliche Einnahmen generiert werden.

Mit der Zentralisierung der Feuerwehr wird zudem der Fahrzeugpark von derzeit sieben Fahrzeugen auf fünf Fahrzeuge reduziert. Dadurch ergeben sich neben den Einsparungen bei der Beschaffung der Fahrzeuge auch geringere Unterhaltungskosten für den Fahrzeugpark.

Hier können Sie sich einen Überblick des neuen Standortes verschaffen.
Auch stehen die ersten Grundrisse des Erdgeschosses und Dachgeschosses für Sie bereit.

Viel Spaß beim Anschauen!

Grundriss EG 759

Grundriss OG 759

Lageplan mit Bestand 759